YTONG
  • Hiše Ytong
    Tipske ytong hišeHiša po vašem načrtuZakaj ytongVirtualni ogled
  • Reference
    Individualne družinske hišeTipske družinske hišeZgodbe naših kupcev
  • Gradbene storitve
  • Novosti
    NoviceBlog
  • O nas
    PodjetjeYtong prodajna mrežaYtong kalkulatorProdajni zastopnikiBrošure
  • Hiše Ytong
    Tipske ytong hišeHiša po vašem načrtuZakaj ytong
    Prednosti materialaPrednosti gradnjeNaši kupci dobijo večYtong izdelkiTermo Premium
    Virtualni ogled
  • Reference
    Individualne družinske hišeTipske družinske hišeZgodbe naših kupcev
  • Gradbene storitve
  • Novosti
    NoviceBlog
  • O nas
    PodjetjeYtong prodajna mrežaYtong kalkulatorProdajni zastopnikiBrošure
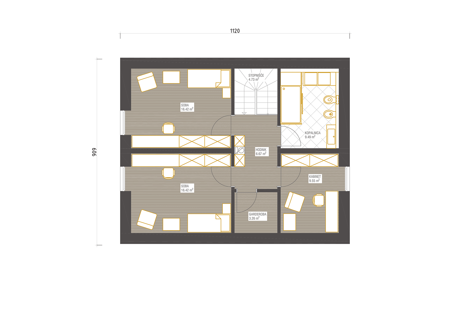
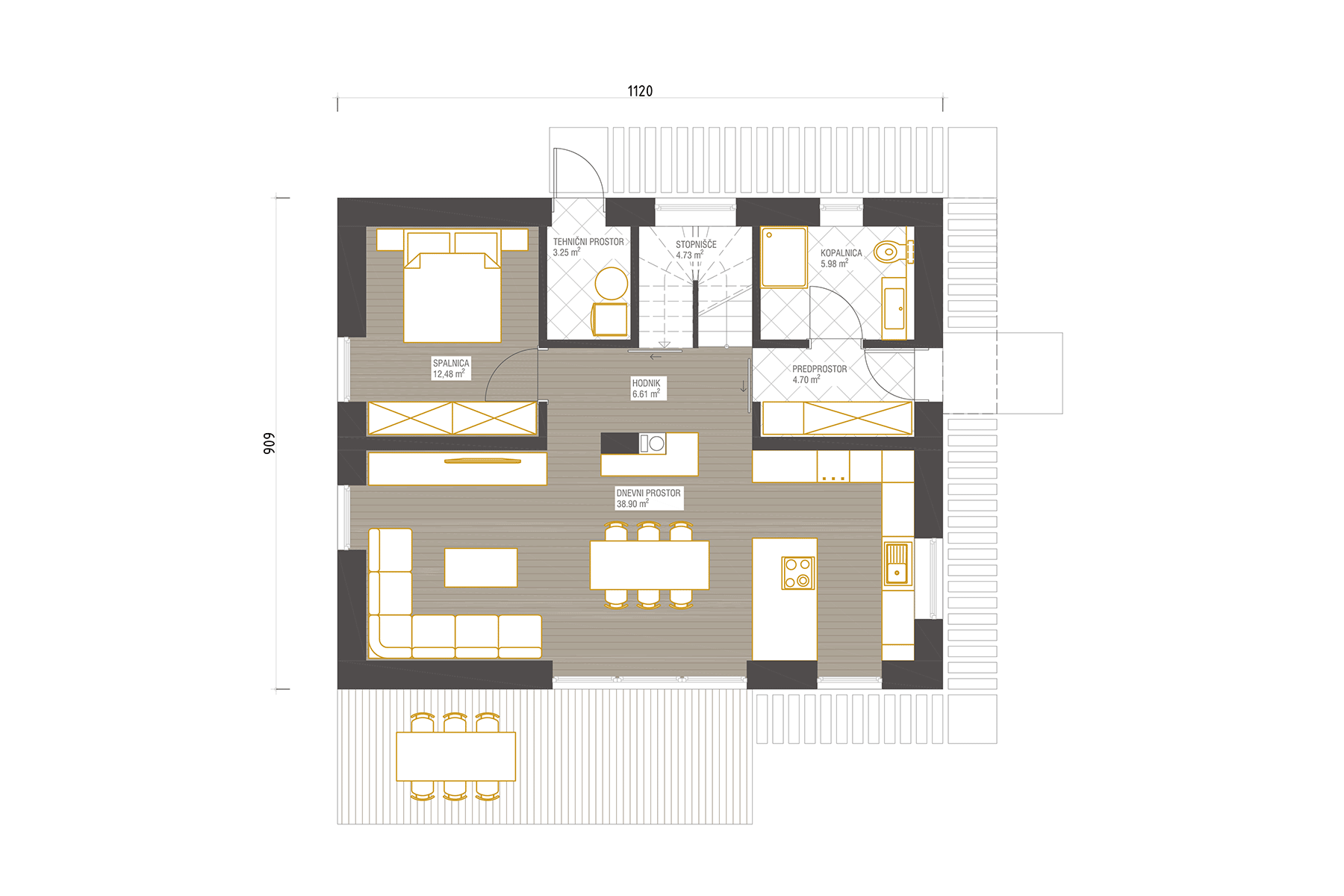
Taja  - 144 m2

Taja - 144 m2

Hiša Taja ima vse značilnosti univerzalne hiše, ki je primerna za vse vrste slovenskih okolij. Dvokapnica ima v priličju dnevne prostore s kuhinjo in jedilnico predvidene v eni liniji, v zgornjih prostorih pa s tremi prostornimi sobami, garderobo in kopalnico hkrati nudi tudi veliko osebnega prostora za vsakega stanovalca.
Idejna zasnova: Pinterič Nikola

Ponudbeni paketi
XELLA OSNOVNI
XELLA NAPREDNI

XELLA OSNOVNI (3. GRADBENA FAZA)

je ponudbeni paket za gradnjo hiše, ki zajema:

  • projektno dokumentacijo za pridobitev projektnih in drugih pogojev (DPP)
  • projektno dokumentacijo DGD
  • PZI
  • izgradnjo gradbenega sistema Ytong skladno s projektom PZI tipske Ytong hiše
  • Ytong strop nad pritličjem
  • strešna konstrukcija
  • krovskokleparska dela
Cena : 93.500 € *

XELLA NAPREDNI (3. PODALJŠANA GRADBENA FAZA)

je ponudbeni paket za gradnjo hiše, ki zajema:

  • projektno dokumentacijo za pridobitev projektnih in drugih pogojev (DPP)
  • projektno dokumentacijo DGD
  • PZI
  • izgradnjo gradbenega sistema Ytong skladno s projektom PZI tipske Ytong hiše
  • Ytong strop nad pritličjem
  • strešna konstrukcija
  • krovskokleparska dela
  • zunanje stavbno pohištvo (okna in vhodna vrata)
  • kontaktna fasada iz toplotne izolacije Multipor
  • notranjost je surova, brez estriha, ometov ter strojnih in elektro inštalacij
Cena : 136.800 € *
Pošlji povpraševanje Preveri podrobnosti paketa

Ponudbeni paket zajema:

  1. Projektna dokumentacija za pridobitev projektnih in drugih pogojev (DPP), projektna dokumentacija za pridobitev mnenj in gradbenega dovoljenja (DGD).
  2. Projektna dokumentacija za izvedbo gradnje (PZI) s podrobnimi izvedbenimi detajli, armaturnimi načrti, popisi del in predizmerami, specifikacijami potrebnih materialov in drugo v skladu s pravilnikom o podrobnejši vsebini dokumentacije in obrazcih.
  3. Gradbeni sistem Ytong z izvedbo:
    – zunanjih zidov iz termoblokov debeline 40 cm; notranjih nosilnih zidov debeline 25 cm;
    – predelnih sten debeline 15 cm, vključno s pocinkanimi sidri za sidranje predelnih sten;
    – vertikalnih vezi iz protipotresnih zidnih blokov PTB;
    – preklad za premostitev okenskih in vratnih odprtin;
    – opaža in toplotne zaščite zunanjega roba medetažnih konstrukcij iz L elementov;
    – horizontalnih, poševnih in kolenčnih vezi ter horizontalnih nosilcev iz U elementov;
    – Ytong stropa nad pritličjem;
    – lepilna malta za zidanje;
    – dostava in razkladanje na gradbišču.
  4. Betonska in zidarska dela potrebna za izvedbo gradbenega sistema Ytong na pripravljeno temeljenje bez izvedene horizontalne hidroizolacije.
    Za izvedbo temeljenja poskrbi investitor oz. je lahko predmet dodatnega naročila na osnovi potrjene ponudbe s strani naročnika, ki se izdela na podlagi PZI projekta.
  5. Izvedba medetažne armirano betonske plošče, v hišah, kjer je to predvideno s projektom PZI. Stopnišče in dimnik nista zajeta v paketni ponudbi, lahko je predmet dodatnega naročila na podlagi potrjene ponudbe s strani naročnika.
  6. Izvedba ravne strehe na hišah, kjer je to predvideno, na predhodno izdelano strešno konstrukcijo v sestavi:
    – hladni bitumenski premaz
    – parna zapora
    – toplotna izolacija v naklonu
    – strešna folija z zaščito
    – pran prodec
  7. Tesarska dela:
    Strešna konstrukcija zaščitena proti plesni in škodljivcem.
    Sestava strehe:
    – deske debeline 2 cm,
    – paroprepustna foljija 200g,
    – vzdolžne letve 5/8 cm,
    – prečne letve 5/5 cm.
    Napušč ni obdelan. Zapiranje napuča s škatlo je predvideno v paketu “Xella napredni” v sklopu fasaderskih del.
  8. Krovsko – kleparska dela.
    Paket zajema visoko kakovostno opečno strešno kritino (barva skladno s projektnimi pogoji) kompletno z zračniki in drugimi dodatnimi elementi za funkcionalno streho, brez krajnikov.
    Vsa potrebna kleparska dela iz barvne aluminijeve pločevine
    – odtočne cevi,
    – žlebovi,
    – kljuke,
    – kolena,
    – kotlički,
    – odkapna pločevina,
    – čelne obrobe,
    montaža točkovnih snegolovov v barvi kritine (2,8 kos/m2),
    dobava in montaža dveh odduhov ter prezračevalne mrežice v kapu. Dobava in montaža enega strešnega okna 78 x 118.

    Natančna vsebina in cena ponudbenega paketa se določi na podlagi popisa del in predizmer iz projekta PZI ter investitorjevega povpraševanja.

 

Ponudbeni paket ne zajema:

  1. Pripravljalna dela, zemeljska dela, temeljenje, hidroizolacije, stavbnega pohištva ter ostala obrtniška dela.
  2. Geodetski načrt, geološko poročilo, ev. hidrološko poročilo, pridobivanje služnostne pravice, projekt rušitvenih del, večje dodelave ali predelave projekta, zunanje ureditve, kot npr. oporni zidovi. Kupec pred pričetkom projektiranja priskrbi lokacijsko informacijo ter na lastne stroške geodetski načrt.
  3. Vsi dodatni projekti izvedbe priključkov, ki jih v fazi pridobivanja gradbenega dovoljenja lahko zahtevajo mnenjedajalci.
  4. Morebitne modifikacije projekta so stvar posebnega dogovora.
  5. Gradbiščni priključki: gradbiščna elektrika in voda ter dostop do gradbišča, ki jih zagotovi investitor in da v brezplačno uporabo izvajalcu.

 

Plačilni pogoji:

  • 20% celotne pogodbene vrednosti tipske hiše ob podpisu oz. najkasneje 14 dni po podpisu pogodbe. Ta del pogodbene vrednosti se smatra kot ara.
  • 60% pogodbene vrednosti pred pričetkom del;
  • preostanek kupnine v višini 20% najkasneje v 15 dneh po zaključku del oz. po opravljeni primopredaji izvedenih del.

 

Opombe:

Predmet dodatne ponudbe so lahko tudi pripravljalna dela, zemeljska dela, temeljenje ter ostala dela po dogovoru razen zunanje ureditve.
Za naknadno dogovorjena dela se pripravi posebna ponudba.
Preveri podrobnosti paketa

Ponudbeni paket zajema:

  1. Projektna dokumentacija za pridobitev projektnih in drugih pogojev (DPP), projektna dokumentacija za pridobitev mnenj in gradbenega dovoljenja (DGD).
  2. Projektna dokumentacija za izvedbo gradnje (PZI) s podrobnimi izvedbenimi detajli, armaturnimi načrti, popisi del in predizmerami, specifikacijami potrebnih materialov in drugo v skladu s pravilnikom o podrobnejši vsebini dokumentacije in obrazcih.
  3. Gradbeni sistem Ytong z izvedbo:
    – zunanjih zidov iz termoblokov debeline 40 cm; notranjih nosilnih zidov debeline 25 cm;
    – predelnih sten debeline 15 cm, vključno s pocinkanimi sidri za sidranje predelnih sten;
    – vertikalnih vezi iz protipotresnih zidnih blokov PTB;
    – preklad za premostitev okenskih in vratnih odprtin;
    – opaža in toplotne zaščite zunanjega roba medetažnih konstrukcij iz L elementov;
    – horizontalnih, poševnih in kolenčnih vezi ter horizontalnih nosilcev iz U elementov;
    – Ytong stropa nad pritličjem;
    – lepilna malta za zidanje;
    – dostava in razkladanje na gradbišču.
  4. Betonska in zidarska dela potrebna za izvedbo gradbenega sistema Ytong na pripravljeno temeljenje bez izvedene horizontalne hidroizolacije.
    Za izvedbo temeljenja poskrbi investitor oz. je lahko predmet dodatnega naročila na osnovi potrjene ponudbe s strani naročnika, ki se izdela na podlagi PZI projekta.
  5. Izvedba medetažne armirano betonske plošče, v hišah, kjer je to predvideno s projektom PZI. Stopnišče in dimnik nista zajeta v paketni ponudbi, lahko je predmet dodatnega naročila na podlagi potrjene ponudbe s strani naročnika.
  6. Izvedba ravne strehe na hišah, kjer je to predvideno, na predhodno izdelano strešno konstrukcijo v sestavi:
    – hladni bitumenski premaz
    – parna zapora
    – toplotna izolacija v naklonu
    – strešna folija z zaščito
    – pran prodec
  7. Tesarska dela:
    Strešna konstrukcija zaščitena proti plesni in škodljivcem.
    Sestava strehe:
    – deske debeline 2 cm,
    – paroprepustna foljija 200g,
    – vzdolžne letve 5/8 cm,
    – prečne letve 5/5 cm.
  8. Krovsko – kleparska dela.
    Paket zajema visoko kakovostno opečno strešno kritino (barva skladno s projektnimi pogoji) kompletno z zračniki in drugimi dodatnimi elementi za funkcionalno streho, brez krajnikov.
    Vsa potrebna kleparska dela iz barvne aluminijeve pločevine
    – odtočne cevi,
    – žlebovi,
    – kljuke,
    – kolena,
    – kotlički,
    – odkapna pločevina,
    – čelne obrobe,
    montaža točkovnih snegolovov v barvi kritine (2,8 kos/m2),
    dobava in montaža dveh odduhov ter prezračevalne mrežice v kapu. Dobava in montaža enega strešnega okna 78 x 118.
  9. Stavbno pohištvo:
    Dobava in vgradnja visoko kakovostnih PVC oken v beli barvi s troslojno zasteklitvijo,
    – Ug=0,5 W/m2K, Uw=0,73 W/m2K
    – gumi distančniki med stekli s skritim okovjem,
    – dodatno ojačanim pet komornim profilom.
    – Za senčenje paketna ponudba zajema rolete z ročnim upravljanjem.
    Dobava in montaža vhodnih vrat skladno s paketno ponudbo.
    Dobava in vgradnja zunanjih granitnih okenskih polic, tip Rosa Beta, debeline 3 cm.
  10. Fasaderska dela:
    Fasadni sistem z mineralnimi toplotno izolacijskimi ploščami Multipor debeline 16 cm,
    – lepljenje in armiranje s sistemsko lepilno malto,
    – sidranje
    – ter izdelava silikonskega zaključnega sloja. Izdelava škatle za zapiranje napušča.
    Obdelava balkonov, kot so dobava in izvedba naklonskih betonov, hidroizolacije, toplotne izolacije, talnih obkog in ograj, niso predmet ponudbe.

    Natančna vsebina in cena ponudbenega paketa se določi na podlagi popisa del in predizmer iz projekta PZI ter investitorjevega povpraševanja.

 

Ponudbeni paket ne zajema:

  1. Pripravljalna dela, zemeljska dela, temeljenje, hidroizolacije ter ostala obrtniška dela.
  2. Geodetski načrt, geološko poročilo, ev. hidrološko poročilo, pridobivanje služnostne pravice, projekt rušitvenih del, večje dodelave ali predelave projekta, zunanje ureditve, kot npr. oporni zidovi. Kupec pred pričetkom projektiranja priskrbi lokacijsko informacijo ter na lastne stroške geodetski načrt.
  3. Vsi dodatni projekti izvedbe priključkov, ki jih v fazi pridobivanja gradbenega dovoljenja lahko zahtevajo mnenjedajalci.
  4. Morebitne modifikacije projekta so stvar posebnega dogovora.
  5. Gradbiščni priključki: gradbiščna elektrika in voda ter dostop do gradbišča, ki jih zagotovi investitor in da v brezplačno uporabo izvajalcu.

 

Plačilni pogoji:

  • 20% celotne pogodbene vrednosti tipske hiše ob podpisu oz. najkasneje 14 dni po podpisu pogodbe. Ta del pogodbene vrednosti se smatra kot ara.
  • 60% pogodbene vrednosti pred pričetkom del;
  • 10% po primopredaji stavbnega pohištva, preostanek kupnine v višini 10% po zaključku del oz. po opravljeni primopredaji izvedenih del.

 

Opombe:

Predmet dodatne ponudbe so lahko tudi pripravljalna dela, zemeljska dela, temeljenje ter ostala dela po dogovoru razen zunanje ureditve.
Za naknadno dogovorjena dela se pripravi posebna ponudba.

* Zemeljska dela in temeljenje nista predmet paketne ponudbe. Ponudba za zemeljska dela in temeljenje se na investitorjevo željo pripravi na podlagi PZI projekta.

Cene so informativne in se prilagajajo glede na cene materialov na trgu. Za stanovanjske objekte do 250 m² površine vključujejo 9,5 % DDV, nad 250 m² stanovanjske površine pa 22 % DDV. Individualno ponudbo s specifikacijo vseh del in materialov boste prejeli po izpolnitvi spodnjega obrazca za povpraševanje, h kateremu mora biti priložena lokacijska informacija parcele, na kateri boste gradili.

  • Hiše Ytong
    • Tipske ytong hiše
    • Hiša po vašem načrtu
    • Zakaj ytong
      • Prednosti materiala
      • Prednosti gradnje
      • Naši kupci dobijo več
      • Ytong izdelki
      • Termo Premium
    • Virtualni ogled
  • Reference
    • Individualne družinske hiše
    • Tipske družinske hiše
    • Zgodbe naših kupcev
  • Gradbene storitve
  • Novosti
    • Novice
    • Blog
  • O nas
    • Podjetje
    • Ytong prodajna mreža
    • Ytong kalkulator
    • Prodajni zastopniki
    • Brošure
Platinasta boniteta
  • © 2024 Ytong
  • Vse pravice pridržane
  • Pravilnik o zasebnosti
  • Obvestila o piškotkih
  • Izdelava spletnih strani: AV studio